top of page

Construction
Drawings
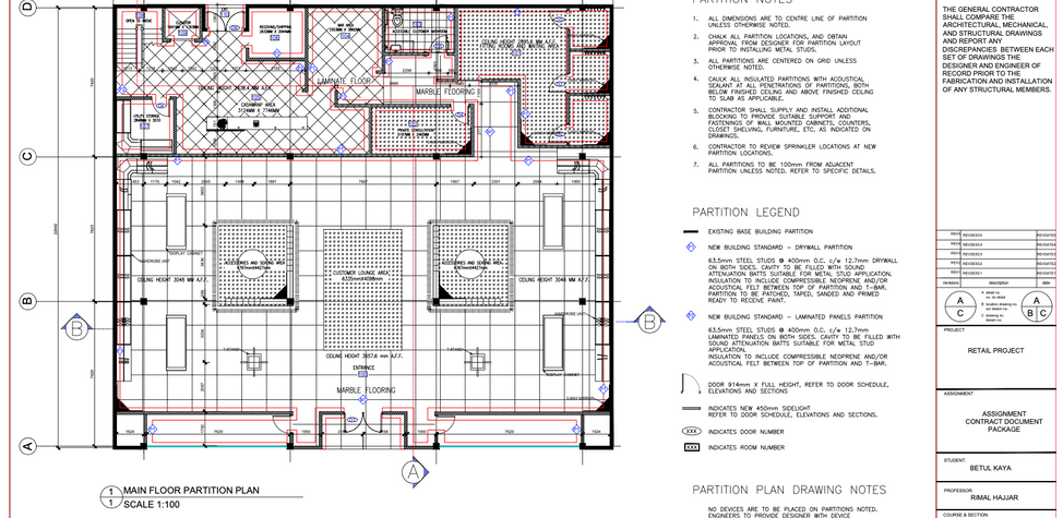
These drawings refer to pre-construction drawings to represent the intended structure. Drawings are constantly updated and revised to ensure health & safety requirements are met and design solutions align with the Ontario Building Code's construction and building requirements. All drawings are owned by Betul Kaya and are a product of school work.
RETAIL PROJECT
CORPORATE PROJECT
OTHER PROJECTS

Office Design- Partition Plan

Office Design- Furniture Plan

ART ENGINE, OTTAWA

Office Design- Partition Plan
1/5
bottom of page














